Skip to content
QUADR

QUADR

Architektura, urbanismus, design

  • Portfolio
  • O nás
  • Aktuality
  • Kontakty
    • Kontakty
    • Napište nám
    • Instagram
Fotografie - Modřany RD
  • Rodinné domy

Modřany – rodinný dům

by Quadr admin15. 6. 202212. 12. 2023

Realizovaná novostavba – rodinný dům v pražských Modřanech

Fotografie - realizace
Fotografie - realizace
Fotografie - realizace
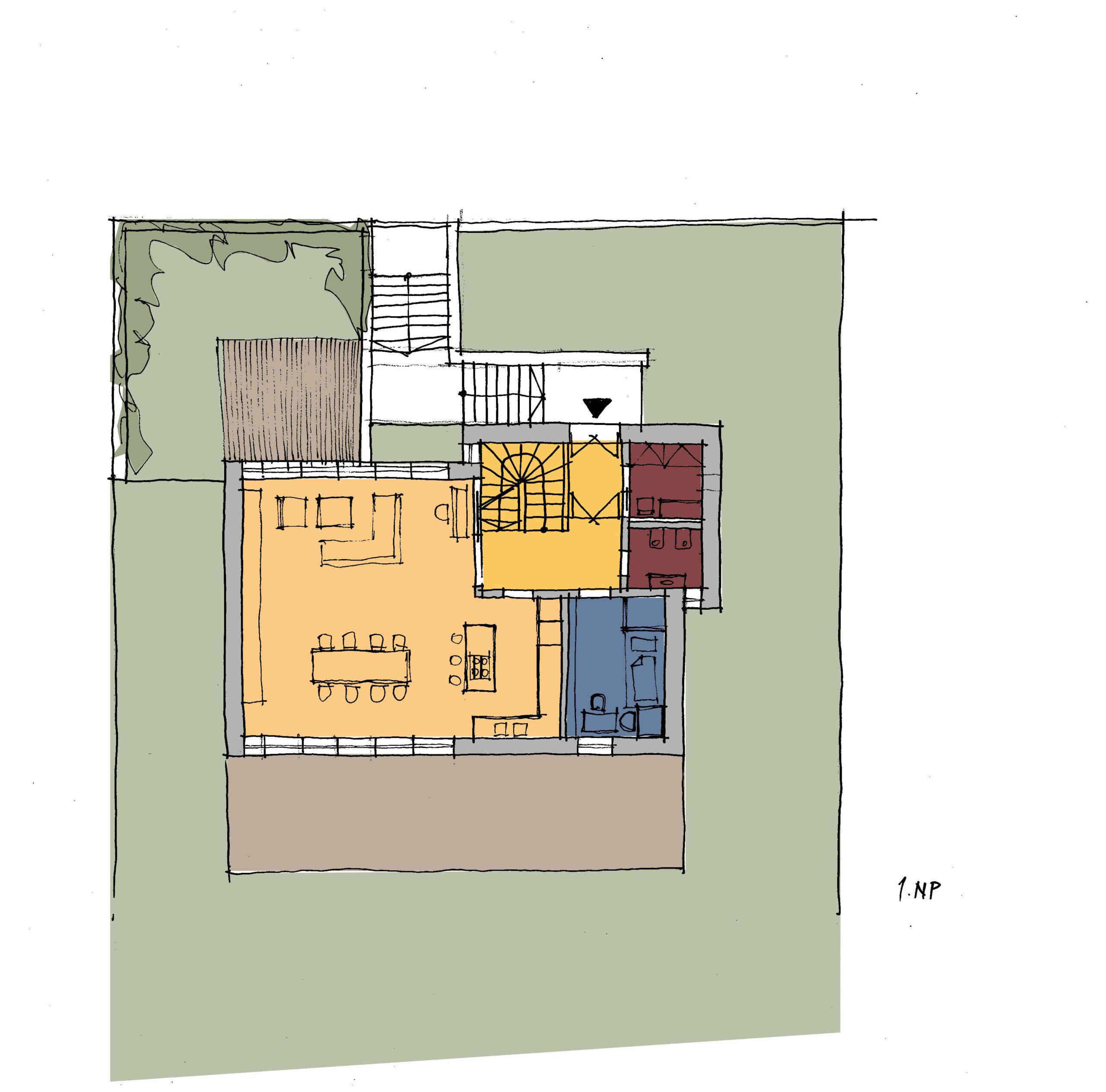
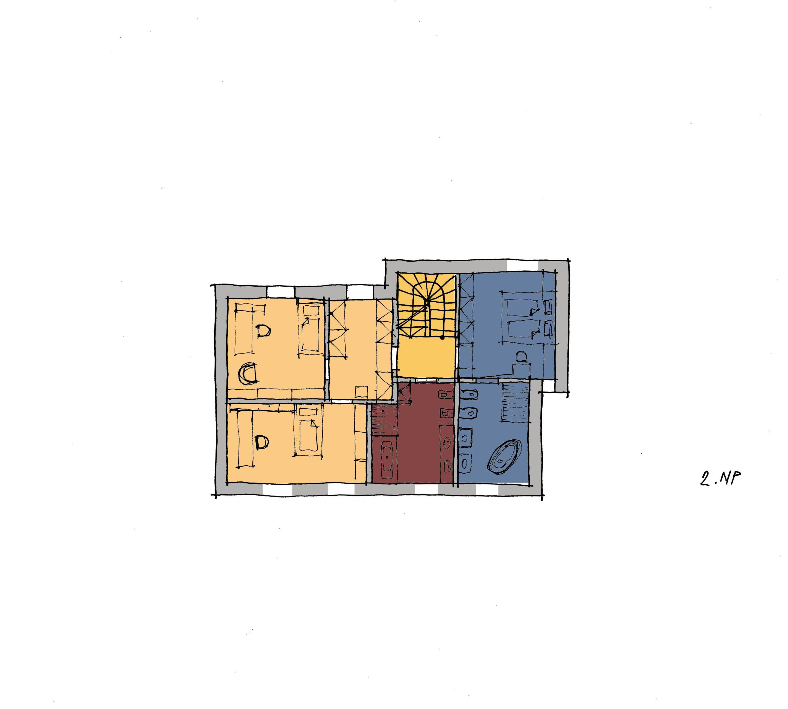
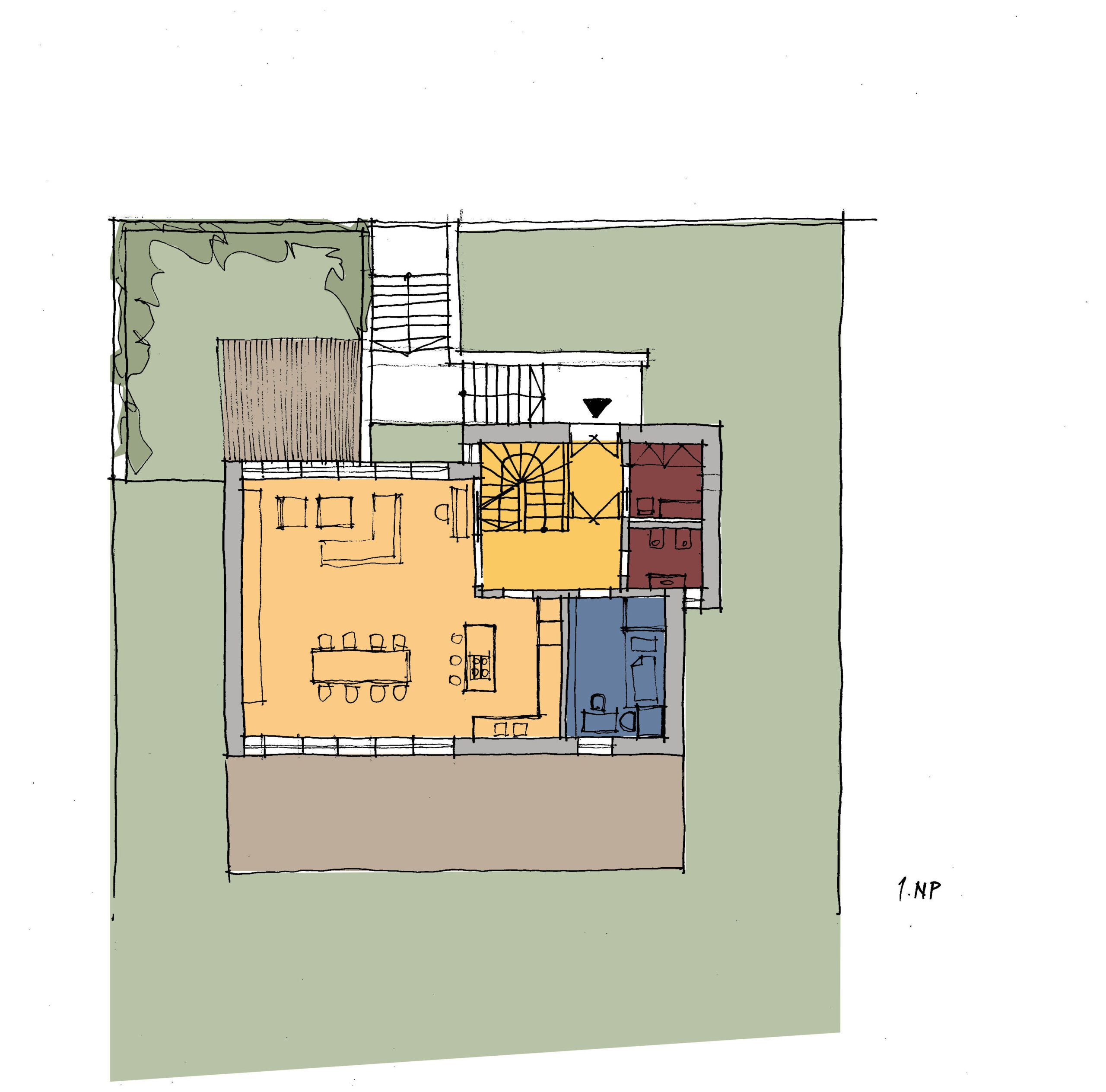
Půdorys
Půdorys
Půdorys
Půdorys
Pohled
Pohled
TagsRealizaceRodinný dům
© 2024 QUADR architekti. created by Kateřina Sedláčková
Tato webová stránka ukládá data, jako jsou soubory cookie, aby umožnila základní fungování stránek, marketing, personalizaci a analýzu. Svým souhlasem nám umožníte tyto cookies využívat v souladu s našimi zásadami ochrany osobních údajů